Sofort einziehen oder Mieterträge sichern! 3-Fam.-Haus in in FFB. Keine Maklerprovision für Käufer!
Beschreibung:
Exklusives Investment in Fürstenfeldbruck – Dreifamilienhaus mit Stil und SubstanzBesonders attraktiv: Die Erdgeschosswohnung ist seit Oktober bezugsfrei – ideal für Eigennutzer, die zeitnah einziehen möchten, oder Kapitalanleger, die flexibel vermieten wollen.
Remax Prime präsentiert Ihnen ein seltenes Immobilienangebot, das historische Solidität, geschmackvolle Modernisierung und hervorragende Investitionsperspektiven miteinander vereint.
Inmitten einer gewachsenen, ruhigen Wohngegend von Fürstenfeldbruck erwartet Sie ein freistehendes Dreifamilienhaus, das mit architektonischem Charme, soliden Materialien und durchdachter Raumaufteilung überzeugt.
Bereits im Jahr 2001 wurde das Gebäude einer umfassenden Sanierung unterzogen: Die Erneuerung der Heizungsanlage, die vollständige Dämmung von Fassade und Dach, neue Fenster, modernisierte Tageslichtbäder sowie die stilvolle Erweiterung um eine großzügige Dachgeschosswohnung sprechen für eine weitsichtige Instandhaltung und langfristige Werterhaltung.
Ein Haus mit klarer Struktur – und vielfältigem Potenzial
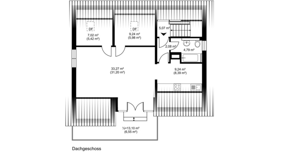
Auf einem Grundstück von ca. 581 m² erstreckt sich eine Wohnfläche von ca. 234 m², ergänzt durch rund 73 m² Nutzfläche. Die drei eigenständigen Wohneinheiten sind klug konzipiert, lichtdurchflutet und mit offenen Wohnküchen ausgestattet, die als kommunikative Zentren den Alltag bereichern und eine hohe Wohnqualität garantieren.
Jede der drei Wohnungen verfügt über ein helles Tageslichtbad mit Badewanne – als private Rückzugsorte gestaltet, die Funktionalität und Entspannung harmonisch vereinen. Die Wohn- und Schlafräume bieten ausreichend Platz für individuelle Lebensstile. Besonders hervorzuheben sind die großen Südbalkone, die einen Blick in den gepflegten Garten freigeben und zum Verweilen in der Nachmittagssonne einladen.
Im Untergeschoss befinden sich neben dem gemeinschaftlichen Waschraum mit separaten Anschlüssen auch zwei großzügige Hobbyräume sowie abgeschlossene Kellerräume. Diese bieten nicht nur zusätzlichen Stauraum, sondern ein diskreter Komfort, der bei Mietern und Eigentümern gleichermaßen geschätzt wird.
Lagebeschreibung:
Die Goethestraße liegt in einer ruhigen Wohnlage im Herzen von Fürstenfeldbruck, nur wenige Minuten vom Stadtzentrum entfernt. Die hervorragende Infrastruktur – mit Schulen, Einkaufsmöglichkeiten, Ärzten und Freizeitangeboten in unmittelbarer Nähe – macht das Umfeld sowohl für Familien als auch für berufstätige Pendler attraktiv.Die Anbindung an das Münchner Stadtgebiet ist exzellent: Mit der S-Bahn oder dem Auto erreichen Sie die Landeshauptstadt in unter 30 Minuten. Für Kapitalanleger ergibt sich daraus eine wertvolle Standortkonstante in einem Marktumfeld, das zunehmend auf solide, dezentrale Lagen setzt.
Unsere interaktive Karte bietet Ihnen alle Antworten auf Ihre Fragen und ermöglicht es Ihnen, Ihre neue Umgebung mit Freude zu erkunden. Das Tool ermöglicht Ihnen eine einfache Analyse und bietet eine starke Präsentation vom Immobilienstandort und spart Ihnen bis zu 86% an Zeit bei der Recherche und Aufbereitung der detaillierten Immobilienlage.
Die Lage ist mit Google verknüpft und liefert Ihnen auf Wunsch alle Daten und Details direkt zum von Ihnen ausgewählten Standort.
Hören, was Sie besichtigen wollen: MFH in FFB:
Hören, was Sie besichtigen wollen: MFH in FFBAusstattung:
Energieausweis:
- A+
- A
- B
- C
- D
- E
- F
- G
- H
- Baujahr:
- 1937
- Endenergieverbrauch:
- 125 kWh/(m²a)
- Energieausweis:
- Verbrauchsausweis
- Energieeffizienzklasse:
- D
- Energieausweis gültig bis:
- 25.04.2034
- Baujahr lt. Energieausweis:
- 1937
- wesentlicher Energieträger:
- Gas
Ausstattungsbeschreibung:
Entdecken Sie exklusives Wohnen: Ein architektonisches Meisterwerk, das sich durch seine solide Bauweise und seinen hervorragenden Zustand auszeichnet. Remax Prime präsentiert Ihnen stolz dieses freistehende Dreifamilienhaus, das mit seiner Qualität und Langlebigkeit überzeugt und Ihnen eine Investition mit Weitblick verspricht.Die Highlights des Anwesens umfassen:
+ Eine beeindruckende Wohnfläche von circa 234 Quadratmetern, die großzügigen Lebensraum für individuelle Wohnkonzepte bietet.
+ Ein weitläufiges Grundstück von circa 581 Quadratmetern, das Freiraum für Kreativität und Gestaltung lässt.
+ Ein exzellenter Erhaltungszustand, der die Wertbeständigkeit Ihres neuen Eigentums unterstreicht.
+ Eine Fassadendämmung, die energetische Effizienz und Nachhaltigkeit garantiert.
+ Ein isoliertes Dach, das für ein optimales Raumklima und reduzierte Heizkosten sorgt.
+ Elegante Parkettböden, die jedem Raum eine warme und einladende Atmosphäre verleihen.
+ Ausgewählte Bereiche mit Fliesen, die Funktionalität und Ästhetik vereinen.
+ Großzügige Süd-Balkone, die zum Entspannen in der Morgensonne einladen.
+ Ein idyllischer Garten, der als private Oase der Ruhe und Erholung dient.
+ Zwei abschließbare Garagen, die Sicherheit für Ihre Fahrzeuge bieten.
+ Ein separater Waschraum im Untergeschoss mit privaten Anschlüssen, der Komfort und Privatsphäre gewährleistet.
Aktuell sind zwei Wohnungen vermietet. Bei Eigenbedarf durch den Käufer liegen die Kündigungsfristen der Mietverhältnisse lt. BGB bei drei oder neun Monaten - je nach Wohnungseinheit.
Mit diesem Immobilienangebot sichern Sie sich nicht nur ein exquisites Zuhause, sondern auch eine sorgfältig geprüfte und zukunftssichere Kapitalanlage.
Mit einer möglichen Bruttorendite von ca. 3,7 % bietet diese Immobilie eine solide Kapitalanlage.
Immobilien schlafen nicht – und wir eigentlich auch nicht.
Doch wenn wir uns ausnahmsweise mal eine Mütze Schlaf gönnen, haben wir vorgesorgt: Unsere digitale Assistentin „Alexa Prime“ von RE/MAX Prime ist rund um die Uhr für Sie da. Sie können jederzeit anrufen – 24 Stunden am Tag, 7 Tage die Woche – und bekommen Antworten auf Ihre ersten Fragen oder können direkt einen Besichtigungstermin vereinbaren.
Die Telefonnummer finden Sie selbstverständlich in den Exposé-Bildern zum Objekt. Also: Rufen Sie einfach an – egal, wann es Ihnen passt!
Sonstige Angaben:
Rechtlicher Hinweis:Maklercourtage: ohne weitere Käuferprovision
Wir haben die Wohnfläche durch einen eigenen, externen Sachverständigen überprüft. Wir übernehmen keine Haftung für Angaben Dritter. Ebenso haben wir die Flächen zur Gartennutzung und Grundstücksgröße nicht überprüft, bzw. nachgemessen. Die Angaben zum Baujahr konnten wir nicht eindeutig ermitteln, gehen aber davon aus, dass das Gebäude im Jahr 1937 gebaut und im Jahr 2001 aufgestockt und saniert worden ist.
Da wir Objektangaben nicht selbst ermitteln, sondern diese von Dritten, wie Bauträgern, Architekten, Hausverwaltungen sowie Eigentümern stammen, übernehmen wir hierfür keine Haftung. Wir übernehmen keine Haftung für die Vollständigkeit, Richtigkeit und Aktualität dieser Angaben.
Dieses Exposé ist nur für Sie persönlich bestimmt. Eine Weitergabe an Dritte ist an unsere ausdrückliche Zustimmung gebunden. Alle Gespräche sind über unser Büro zu führen. Bei Zuwiderhandlungen behalten wir uns Schadensersatzansprüche vor. Diese Immobilie wird im Exklusivvertrag durch unser Haus angeboten.
Exposé Stand: 15.05.2025 - Änderungen vorbehalten
Sie wollen mehr erfahren?
Wenn Sie uns eine Nachricht über das Kontaktformular senden, melden wir uns schnellstmöglich bei Ihnen:














