Stadtleben mit Alpenpanorama – 3-Zimmer-Refugium in Bogenhausen
Beschreibung:
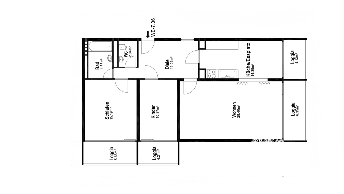
Diese 3-Zimmer-Wohnung im 7. Obergeschoss eines gepflegten Mehrparteienhauses vereint stilvolle Großzügigkeit, ästhetische Eleganz und eine durchdachte Raumkonzeption. Mit vier Balkonen in idealer Süd- und Westausrichtung eröffnet sich ein spektakulärer Panoramablick, der bei klarer Sicht bis zu den Alpen reicht – ein seltenes und beeindruckendes Privileg.Die hohen Decken und die hohen Türrahmen unterstreichen das großzügige Raumgefühl und verleihen der Wohnung eine erhabene Ausstrahlung. Die offen gestaltete Küche fügt sich durch fließende Übergänge harmonisch in den Ess- und Wohnbereich ein, wodurch ein stimmiges und einladendes Ambiente geschaffen wird. Diese durchdachte Gestaltung wird durch lichtdurchflutete Räume und hochwertige Materialien in Perfektion ergänzt.
Besonders hervorzuheben ist die Seltenheit der vier Balkone-Loggien, die nicht nur großzügige Außenbereiche bieten, sondern auch verschiedene Perspektiven auf die Umgebung eröffnen – ein echtes Highlight der Immobilie.
Die Wohnung umfasst zwei großzügige Schlafzimmer, die vielseitige Nutzungsmöglichkeiten bieten, sei es als privater Rückzugsort oder kreativer Raum. Ein stilvoll gestaltetes Badezimmer mit Badewanne und Waschmaschinenanschluss sowie ein separates Gäste-WC sorgen für zusätzlichen Komfort und Funktionalität.
Diese Immobilie eignet sich sowohl für junge Familien, Singels und Pärchen, die Wert auf ein stilvolles und durchdachtes Zuhause legen, als auch für Kapitalanleger, die eine exklusive und wertbeständige Investition suchen.
Lagebeschreibung:
Diese exklusive Wohnimmobilie befindet sich im prestigeträchtigen Stadtteil Bogenhausen, direkt am Arabellapark – einer der begehrtesten Wohnlagen Münchens. Die Umgebung zeichnet sich durch eine exzellente Infrastruktur aus und bietet eine optimale Anbindung an öffentliche Verkehrsmittel, die Münchner Innenstadt sowie bedeutende Verkehrswege. Hier genießen Sie eine ideale Kombination aus urbaner Lebensqualität und bester Erreichbarkeit.Die Anbindung an den öffentlichen Nahverkehr ist exzellent, mit mehreren Bushaltestellen und einer U-Bahn-Station innerhalb von ca. 5 Minuten zu Fuß erreichbar. Das macht tägliche Pendelwege unkompliziert und schnell. Für den Individualverkehr sind die Autobahnen A9 und A94 in etwa 10 Minuten mit dem Auto erreichbar, was einen schnellen Zugang zum städtischen und überregionalen Straßennetz ermöglicht. Der nächstgelegene internationale Flughafen München kann in ca. 30 Minuten erreicht werden, ideal für Vielreisende.
Für Familien besonders attraktiv sind die nahegelegenen Bildungseinrichtungen wie das Wilhelm-Hausenstein-Gymnasium und mehrere Kindergärten in Gehweite. Das umfassende Bildungsangebot ist ein wesentlicher Vorteil für eine langfristige Wohnperspektive.
Ein besonderes Highlight für die Gesundheit ist die unmittelbare Nähe zur München Klinik Bogenhausen sowie mehreren Fachärzten und Gesundheitseinrichtungen. Diese erstklassige medizinische Versorgung in der Nachbarschaft bietet ein beruhigendes Maß an Sicherheit im Alltag.
Für die Freizeitgestaltung stehen zahlreiche Sport- und Erholungsmöglichkeiten zur Verfügung. Der Arabellapark und weitere Grünflächen laden zu Freizeitaktivitäten oder entspannten Spaziergängen ein. Die Nähe zu Restaurants und Cafés rundet das Angebot ab, wodurch die Wohnlage sowohl für Familien als auch für Berufstätige äußerst attraktiv ist.
Wir laden Sie herzlich dazu ein, unsere interaktive Karte zu nutzen, um sich einen detaillierten Überblick über die Lage der Immobilie zu verschaffen. Sie haben die Möglichkeit, schnell und einfach Informationen zu wichtigen Einrichtungen wie S-Bahnhaltestellen, Arztpraxen, Kindergärten, Schulen, Fitnessstudios und Sehenswürdigkeiten zu erhalten.
Unsere interaktive Karte bietet Ihnen alle Antworten auf Ihre Fragen und ermöglicht es Ihnen, Ihre neue Umgebung mit Freude zu erkunden. Das Tool ermöglicht Ihnen eine einfache Analyse und bietet eine starke Präsentation vom Immobilienstandort und spart Ihnen bis zu 86% an Zeit bei der Recherche und Aufbereitung der detaillierten Immobilienlage.
Die Lage ist mit Google verknüpft und liefert Ihnen auf Wunsch alle Daten und Details direkt zum von Ihnen ausgewählten Standort.
Hören, was Sie besichtigen wollen!:
Hören, was Sie besichtigen wollen!Ausstattung:
Energieausweis:
- A+
- A
- B
- C
- D
- E
- F
- G
- H
- Baujahr:
- 1967
- Endenergieverbrauch:
- 196 kWh/(m²a)
- Energieausweis:
- Verbrauchsausweis
- Energieeffizienzklasse:
- F
- Energieausweis gültig bis:
- 19.11.2027
- Baujahr lt. Energieausweis:
- 1967
- wesentlicher Energieträger:
- Fernwärme
Ausstattungsbeschreibung:
Highlights der Immobilie- Stockwerk: 7. Obergeschoss, bequem erreichbar über einen modernen Aufzug
- Balkone-Loggien: Vier großzügige überdachte Balkone mit Süd- und Westausrichtung, die außergewöhnliche Ausblicke bieten
- Aussicht: Atemberaubender Panoramablick – bei gutem Wetter bis zu den Alpen
- Fenster: Bodentiefe Fenster schaffen eine lichtdurchflutete Atmosphäre und bieten herrliche Ausblicke
- Heizung: Angenehme Fußbodenheizung für gleichmäßige Wärme und ein behagliches Wohnklima
- Decken und Türen: Hohe Decken und die hohen Türrahmen unterstreichen das großzügige Raumgefühl
- Bodenbeläge: Hochwertiger Parkettboden in den Wohnräumen und stilvolle Fliesen in der Küche und im Bad
- Schlafzimmer: Zwei helle und geräumige Schlafzimmer, die vielseitig nutzbar sind
- Wohnzimmer: Großzügiges Wohnzimmer mit Platz für einen Esstisch – direkt am bodentiefen Fenster gelegen und mit Zugang zu einem der Balkone
Ausstattung der Immobilie
- Offene Küche: Die moderne Einbauküche verbindet sich nahtlos mit dem Ess- und Wohnbereich und bietet einen einladenden Raum für gesellige Stunden.
- Flur: Ein großzügiger Flur mit einem praktischen Einbauschrank, der zusätzlichen Stauraum bietet.
- Badezimmer: Praktisch ausgestattetes Badezimmer mit Badewanne und Waschmaschinenanschluss
- Gäste-WC: Separates Gäste-WC für zusätzlichen Komfort und Funktionalität.
- Raumaufteilung: Eine durchdachte und lichtdurchflutete Raumaufteilung, die großzügiges Wohnen und individuelles Einrichten ermöglicht.
- Tiefgaragenstellplatz: Vollwertiger Stellplatz in der Tiefgarage – komfortabel und sicher.
- Kellerabteil: Zusätzlicher Stauraum in einem privaten Kellerabteil.
- Aufzug: Der im Jahr 2011 erneuerte Aufzug sorgt für einen barrierefreien Zugang zur Wohnung.
- Fahrradraum: Praktischer Gemeinschaftsraum im Keller, der sicheren Abstellplatz für Fahrräder bietet.
Die Wohnung ist zum Kaufpreis von 675.000,00 Euro erhältlich (inkl. Option auf den Tiefgaragen-Stellplatz).
Freilich können Sie selbst entscheiden, ob Sie den Tiefgaragenstellplatz zur Wohnung dazu erwerben möchten oder nicht.
(675.000,00 Euro Wohnung + 25.000,00 Euro für den Stellplatz = 700.000,00 Euro Gesamtkaufpreis).
Für mehr Informationen fordern Sie bitte das vollständige Exposé an.
Immobilien schlafen nicht – und wir eigentlich auch nicht.
Doch wenn wir uns ausnahmsweise mal eine Mütze Schlaf gönnen, haben wir vorgesorgt: Unsere digitale Assistentin „Alexa Prime“ von RE/MAX Prime ist rund um die Uhr für Sie da. Sie können jederzeit anrufen – 24 Stunden am Tag, 7 Tage die Woche – und bekommen Antworten auf Ihre ersten Fragen oder können direkt einen Besichtigungstermin vereinbaren.
Die Telefonnummer finden Sie selbstverständlich in den Exposé-Bildern zum Objekt. Also: Rufen Sie einfach an – egal, wann es Ihnen passt!
Sonstige Angaben:
Rechtlicher Hinweis:Maklercourtage: Ohne zusätzliche Käuferprovision.
Wir haben die Wohnfläche durch Ansicht der Pläne über einen spezialisierten, externen Anbieter Wohnflächenberechnung überprüfen lassen. Wir übernehmen keine Haftung für Angaben Dritter.
Die Angaben zum Baujahr konnten wir nicht eindeutig ermitteln, gehen aber davon aus, dass das Gebäude im Jahr 1967 gebaut worden ist. Wir übernehmen hier zudem die Daten des Energieausweises.
Da wir Objektangaben nicht selbst ermitteln, sondern diese von Dritten, wie Bauträgern, Architekten, Hausverwaltungen sowie Eigentümern stammen, übernehmen wir hierfür keine Haftung. Wir übernehmen keine Haftung für die Vollständigkeit, Richtigkeit und Aktualität dieser Angaben.
Dieses Exposé ist nur für Sie persönlich bestimmt. Eine Weitergabe an Dritte ist an unsere ausdrückliche Zustimmung gebunden. Alle Gespräche sind über unser Büro zu führen. Bei Zuwiderhandlungen behalten wir uns Schadensersatzansprüche vor. Ein Zwischenverkauf ist nicht ausgeschlossen. Diese Immobilie wird im Exklusivvertrag durch unser Haus angeboten.
Die Grunderwerbssteuer, Notar- und Grundbuchkosten sind vom Käufer zu tragen.
In unseren Angeboten wird aus Gründen der besseren Lesbarkeit das generische Maskulinum verwendet. Weibliche und anderweitige Geschlechteridentitäten werden dabei ausdrücklich mitgemeint, soweit es für die Aussage erforderlich ist.
Ihre persönliche Ansprechpartnerin – rund um die Uhr verfügbar
Alexa Prime – die Immobilien-KI von RE/MAX Prime
Immobilienbesichtigungen haben Öffnungszeiten – Ihre Fragen nicht. Deshalb steht Ihnen ab sofort Alexa Prime, unsere digitale Assistentin, zur Seite:
24 Stunden am Tag. 7 Tage die Woche. Direkt aus dem Exposé heraus erreichbar.
Ob Sie Details zur Immobilie benötigen, einen Besichtigungstermin vereinbaren oder einfach nur mit einem unserer Makler sprechen möchten – Alexa Prime ist nur einen Anruf entfernt.
Ihre Vorteile im Überblick:
+ Sofortige Antworten auf alle wichtigen Fragen zur Immobilie
+Bequeme Terminvereinbarung – auch am Wochenende
+Direktes Gespräch mit der KI oder Rückruf durch den zuständigen Makler
So funktioniert’s:
Erleben Sie Immobilienberatung in einer neuen Dimension – schnell, persönlich, intelligent.
Die Telefonnummer zu Alexa Prime lautet 089 628 28 785.
Exposé Stand: 09.09.2025 - Änderungen vorbehalten
Sie wollen mehr erfahren?
Wenn Sie uns eine Nachricht über das Kontaktformular senden, melden wir uns schnellstmöglich bei Ihnen:












