Kinder müssen nicht ins Kellerzimmer: Großes 6 Zimmer Eckhaus in Moosach, energieeffizient & ruhig!
Beschreibung:
Endlich genug Platz für alles und jeden – willkommen in Ihrem neuen Zuhause!Dieses Reiheneckhaus in Moosach ist nicht einfach nur ein Haus, es ist die Antwort auf zu kleine Stadtwohnungen, auf Kinderzimmer im Keller und auf fehlende Stellplätze.
Hier wohnen Sie, wie Sie es sich schon immer gewünscht haben – großzügig, komfortabel und mitten in einer der gefragtesten Lagen Münchens.
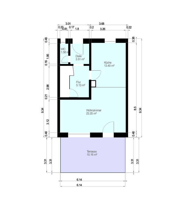
Auf rund 136 m² Wohnfläche, verteilt auf 6 Zimmer, können Sie endlich frei entscheiden: ein Zimmer fürs Homeoffice, eines für die Gäste, eines fürs Hobby – und trotzdem bleibt noch genug Platz, damit jedes Familienmitglied sein eigenes Reich hat.
Keine Kompromisse mehr!
Das 367 m² große Eckgrundstück ist eine Seltenheit: mehr Garten, mehr Sonne, mehr Freiraum. Und als Krönung: bis zu 7 Stellplätze – in München fast schon ein Lottogewinn!
Die wichtigsten und teuersten Sanierungen sind längst erledigt: moderne Fassadendämmung, neue Fenster, Anschlüsse für Klimaanlagen – Sie profitieren sofort von Komfort und einer soliden Energieeffizienzklasse C.
Zwei Tageslichtbäder, zusätzliche Gäste-WCs auf jeder Etage, ein Balkon ins Grüne und ein vollständig unterkellerter Bereich mit riesigem Stauraum runden das Ganze ab.
Dieses Haus ist ein Statement – mehr Raum, mehr Freiheit, mehr Leben.
Lagebeschreibung:
Sie wohnen in Moosach – einem der begehrtesten Stadtteile Münchens. Hier trifft ruhiges Wohnen im Grünen auf direkte Nähe zu Stadt, Shopping und Freizeit.- ca.700 m zur S-Bahn – in wenigen Minuten sind Sie in der Münchner Innenstadt
- 2 km zum Olympia-Einkaufszentrum (OEZ) – shoppen, schlemmen, leben
- Olympiapark ganz in der Nähe – Sport, Kultur und Erholung quasi vor der Haustür
- Autobahn & Mittlerer Ring schnell erreichbar – perfekt für Pendler
- Flughafen München in ca. 35 Minuten erreichbar.
Der Stadtteil selbst bietet alles, was das Herz begehrt:
Supermärkte, Bäckereien, Apotheken & Ärzte in
unmittelbarer Umgebung
Kindergärten, Schulen und Spielplätze fußläufig – ideal für Familien, Restaurants & Cafés für jeden Geschmack - Sportanlagen & Fitnessstudios für den Ausgleich!
Kurz gesagt: Sie leben in einer Oase der Ruhe – und sind gleichzeitig mitten in München.
Wer hier wohnt, verbindet das Beste aus zwei Welten: Stadtnähe & Natur, Ruhe & Leben.
Wissensvorsprung zur Immobilie und Lage:
Wissensvorsprung zur Immobilie und LageHören, was Sie besichtigen wollen: REH Moosach:
Hören, was Sie besichtigen wollen: REH MoosachAusstattung:
Energieausweis:
- A+
- A
- B
- C
- D
- E
- F
- G
- H
- Baujahr:
- 1959
- Endenergieverbrauch:
- 98,1 kWh/(m²a)
- Energieausweis:
- Verbrauchsausweis
- Energieeffizienzklasse:
- C
- Energieausweis gültig bis:
- 30.06.2035
- Baujahr lt. Energieausweis:
- 1959
- wesentlicher Energieträger:
- Gas
Ausstattungsbeschreibung:
Dieses Haus ist nicht einfach eine Immobilie – es ist ein Familienparadies, Platzwunder und Wertanlage in einem:- Eckhaus: mehr Licht, mehr Luft, mehr Privatsphäre
Wohnfläche ca. 136 m²: verteilt auf drei Etagen, perfekt für Familien, Homeoffice & Gäste
- 6 Zimmer: Platz für alles – und endlich keine Diskussion mehr, wer ins „kleinste Zimmer“ muss.
- 367 m² Grundstück: Eckgrundstück mit Garten, Freifläche und Platz für bis zu 7 Stellplätze – in München eine absolute Rarität.
- Moderne Dämmung: ca. 16 cm Fassadendämmung für Top-Energieeffizienz.
- Fenster: erneuert und doppelt verglast für Wärme- und Schallschutz.
- Bäder & WCs: 2 helle Tageslichtbäder + Gäste-WC auf jeder Etage – Schluss mit Warteschlangen am Morgen.
- Balkon: Ausblick ins Grüne für ruhige Auszeiten.
- Keller: Voll unterkellert, perfekt für Fitnessraum, Werkstatt, Weinkeller oder schlicht für alles, was sonst keinen Platz findet.
- Besonders charmant für Käufer: das Bad im 1. OG ist bereits für eine Fußbodenheizung vorbereitet – Sie können es nach Ihren Wünschen gestalten.
- Kaufpreis & Bewertung
Der realistische Marktwert dieser Immobilie liegt bei rund 1.200.000 € – und das ist in dieser Lage absolut nachvollziehbar.
Doch Sie profitieren gleich doppelt:
- ca. 20.000 € Preisabschlag für das Bad im 1. OG:
Dieses befindet sich aktuell im Rohbauzustand, da es bereits für den Einbau einer Fußbodenheizung vorbereitet wurde. Damit haben Sie die Möglichkeit, Ihr Traumbad nach eigenen Vorstellungen zu gestalten.
- ca. 20.000 € weiterer Abschlag für kosmetische Arbeiten wie Malerarbeiten, neue Fliesen und kleinere Instandhaltungen. Ein klarer Vorteil, denn Sie investieren nicht in „versteckte Mängel“, sondern nur in die individuelle Verschönerung.
Unterm Strich ergibt sich daraus ein attraktiver Angebotspreis von 1.160.000 € – in dieser Toplage Moosach, mit bereits erledigten teuren Sanierungen (Fassadendämmung, neue Fenster etc.), ist das eine Gelegenheit, die man selten findet.
Das Beste daran: die wichtigsten, kostenintensiven Sanierungen (Dämmung, Fenster etc.) sind bereits erledigt. Sie investieren nicht in eine „Baustelle“, sondern in ein sofort nutzbares Zuhause.
Immobilien schlafen nicht – und wir eigentlich auch nicht.
Doch wenn wir uns ausnahmsweise mal eine Mütze Schlaf gönnen, haben wir vorgesorgt: Unsere digitale Assistentin „Alexa Prime“ von RE/MAX Prime ist rund um die Uhr für Sie da. Sie können jederzeit anrufen – 24 Stunden am Tag, 7 Tage die Woche – und bekommen Antworten auf Ihre ersten Fragen oder können direkt einen Besichtigungstermin vereinbaren.
Die Telefonnummer finden Sie selbstverständlich in den Exposé-Bildern zum Objekt. Also: Rufen Sie einfach an – egal, wann es Ihnen passt!
Sonstige Angaben:
Rechtlicher Hinweis:Maklercourtage: Ohne zusätzliche Käuferprovision.
Wir haben die Flächen zur Wohnung nicht überprüft, bzw. nachgemessen, aber auf Plausibilität gesichtet. Da wir Objektangaben nicht selbst ermitteln, sondern diese von Dritten, wie Bauträgern, Architekten sowie Eigentümern stammen, übernehmen wir hierfür keine Gewähr.
Die Angaben zum Baujahr konnten wir nicht eindeutig ermitteln, gehen aber davon aus, dass das Gebäude im Jahr 1959 aufgrund der vorliegenden Bauunterlagen auch wirklich erbaut worden ist. Wir übernehmen hier zudem die Daten des Energieausweises.
Da wir Objektangaben nicht selbst ermitteln, sondern diese von Dritten, wie Bauträgern, Architekten sowie Eigentümern stammen, übernehmen wir hierfür keine Haftung. Wir übernehmen keine Haftung für die Vollständigkeit, Richtigkeit und Aktualität dieser Angaben.
Dieses Exposé ist nur für Sie persönlich bestimmt. Eine Weitergabe an Dritte ist an unsere ausdrückliche Zustimmung gebunden. Alle Gespräche sind über unser Büro zu führen. Bei Zuwiderhandlungen behalten wir uns Schadensersatzansprüche vor. Ein Zwischenverkauf ist nicht ausgeschlossen. Diese Immobilie wird im Exklusivvertrag durch unser Haus angeboten.
Die Grunderwerbssteuer, Notar- und Grundbuchkosten sind vom Käufer zu tragen.
Sie wollen mehr erfahren?
Wenn Sie uns eine Nachricht über das Kontaktformular senden, melden wir uns schnellstmöglich bei Ihnen:





















