Großhadern: Neubau-Doppelhaushälfte mit Garten – modernes Familienwohnen in traumhafter Lage
Beschreibung:
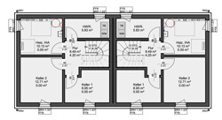
Wir präsentieren Ihnen hier ein attraktives Grundstück in einer der begehrtesten Lagen Münchens, auf dem eine moderne Doppelhaushälfte entstehen kann – nach Ihren individuellen Wünschen und genau so, wie Sie es sich für Ihre Familie vorstellen.Das geplante Haus verbindet urbanes Wohnen mit familiärer Geborgenheit. Auf ca. 102 m² Wohnfläche, verteilt auf drei Ebenen mit Keller, Erd- und Obergeschoss, entsteht ein Zuhause, das perfekt auf die Bedürfnisse von Familien zugeschnitten ist. Herzstück ist der großzügige Wohn- und Essbereich mit direktem Zugang zum sonnigen Garten – ein Ort zum Spielen, Entspannen und Zusammensein. Mit einem Grundstück von ca. 219 m² bietet die Doppelhaushälfte Raum für Wachstum, Rückzugsmöglichkeiten und das gute Gefühl, angekommen zu sein.
Lagebeschreibung:
Die Immobilie befindet sich in einem charmanten und gut angebundenen Stadtteil von München, der sich durch seine ruhige und dennoch zentrale Lage auszeichnet. Die Höhenlage ist typisch für das Münchner Stadtgebiet und bietet eine angenehme Wohnatmosphäre.Die Verkehrsanbindung ist hervorragend. Öffentliche Verkehrsmittel wie Busse und U-Bahn sind in wenigen Gehminuten erreichbar, was eine schnelle Verbindung in die Innenstadt und andere Stadtteile ermöglicht. Die Straßenanbindung ist ebenfalls optimal, mit schnellen Zugängen zu den Hauptverkehrsstraßen. Parkmöglichkeiten sind in der Umgebung ausreichend vorhanden, darunter mehrere Parkplätze und ein Parkhaus.
Für den täglichen Bedarf stehen zahlreiche Einrichtungen zur Verfügung. Supermärkte wie PENNY und Rewe sind fußläufig erreichbar, ebenso wie Bäckereien und Apotheken. Bildungseinrichtungen sind zahlreich vorhanden, darunter Kindergärten, Grundschulen und weiterführende Schulen wie das Lehrinstitut Derksen und die Montessori Schule München.
Die Gesundheitsversorgung ist durch die Nähe zu Arztpraxen, Zahnärzten und dem Klinikum Großhadern ausgezeichnet. Spezialkliniken wie das kbo-Kinderzentrum München sind ebenfalls in der Nähe.
Freizeit- und Erholungsmöglichkeiten sind vielfältig. Grünflächen und Parks laden zum Entspannen ein, während Sporteinrichtungen wie die Judohalle TSV Großhadern für sportliche Aktivitäten sorgen. Restaurants und Cafés wie Widmann und Zum Erdinger Weißbräu bieten kulinarische Vielfalt.
Wir laden Sie herzlich dazu ein, unsere interaktive Karte zu nutzen, um sich einen detaillierten Überblick über die Lage der Immobilie zu verschaffen. Sie haben die Möglichkeit, schnell und einfach Informationen zu wichtigen Einrichtungen wie S-Bahnhaltestellen, Arztpraxen, Kindergärten, Schulen, Fitnessstudios und Sehenswürdigkeiten zu erhalten.
Unsere interaktive Karte bietet Ihnen alle Antworten auf Ihre Fragen und ermöglicht es Ihnen, Ihre neue Umgebung mit Freude zu erkunden. Das Tool ermöglicht Ihnen eine einfache Analyse und bietet eine starke Präsentation vom Immobilienstandort und spart Ihnen bis zu 86% an Zeit bei der Recherche und Aufbereitung der detaillierten Immobilienlage.
Die Lage ist mit Google verknüpft und liefert Ihnen auf Wunsch alle Daten und Details direkt zum von Ihnen ausgewählten Standort.
Hören, was Sie besichtigen wollen: Neubau Doppelhaushälfte:
Hören, was Sie besichtigen wollen: Neubau DoppelhaushälfteAusstattung:
Energieausweis:
- Energieausweis:
- es besteht keine Pflicht!
Ausstattungsbeschreibung:
Ihr neues Zuhause – maßgeschneidert nach Ihren VorstellungenDiese Doppelhaushälfte bietet Ihnen die Möglichkeit, ein modernes Eigenheim in Großhadern ganz nach Ihren Wünschen zu gestalten. Der Neubau wird voll unterkellert und überzeugt mit einer Wohnfläche von ca. 102 m² auf einem Grundstück von rund 219 m². Die klassische Sattel-/Krüppelwalmdachform mit 25° Neigung fügt sich harmonisch in die Umgebung ein und schafft zugleich ein zeitloses Erscheinungsbild.
Nachhaltigkeit & Energieeffizienz
Die Bauweise aus Holz mit ökologischen, diffusionsoffenen Materialien sorgt für ein gesundes Raumklima und ein wohngesundes Umfeld – ideal für Familien. Als klimafreundliches Wohngebäude (QNG Ready) erfüllt das Haus die Voraussetzungen für eine KfW-Förderung. Eine moderne Wärmepumpe in Kombination mit Fußbodenheizung garantiert niedrige Energiekosten und hohen Wohnkomfort.
Ausstattung im Überblick:
- Geplante Bauweise als KfW-40-Effizienzhaus
- Optionale Aufwertung für QNG-Zertifizierung (gegen Aufpreis möglich)
- 3-fach verglaste Fenster mit elektrischen Rollläden
- Sicherheits-Haustür mit 3-fach Verglasung
- Hochwertige Designböden und Markenfliesen
- Bäder mit Sanitärobjekten von Geberit, Villeroy & Boch, Hansgrohe und Grohe
- Massivholztreppe aus Buche
Besonderheiten:
- Gesundes Bauen – geprüft durch das Sentinel Haus Institut
- Digitale Hausakte & Bauzeit-App: volle Transparenz während der Bauphase
- 50 Jahre Garantie auf Grundkonstruktion und Standsicherheit
- und vieles mehr – lassen Sie sich von unserem Baupartner individuell beraten.
Hinweis: Auf dem Grundstück befindet sich aktuell noch ein Altbestand, der vom Käufer abgerissen wird.
Aktuell befindet sich ein Altbestand auf dem Grundstück von ca. 439 Quadratmetern. Das Grundstück wird vor dem Verkauf in zwei separate Grundstücke aufgeteilt.
Vor dem Notartermin erfolgt eine neue Vermessung und offizielle Grundstücksteilung, sodass sich die endgültige Grundstücksgröße, von aktuell ca. 219 Quadratmetern noch leicht verändern könnte.
Bitte fordern Sie das vollständige Exposé an, um alle relevanten Informationen zu erhalten.
Immobilien schlafen nicht – und wir eigentlich auch nicht.
Doch wenn wir uns ausnahmsweise mal eine Mütze Schlaf gönnen, haben wir vorgesorgt: Unsere digitale Assistentin „Alexa Prime“ von RE/MAX Prime ist rund um die Uhr für Sie da. Sie können jederzeit anrufen – 24 Stunden am Tag, 7 Tage die Woche – und bekommen Antworten auf Ihre ersten Fragen oder können direkt einen Besichtigungstermin vereinbaren.
Die Telefonnummer finden Sie selbstverständlich in den Exposé-Bildern zum Objekt. Also: Rufen Sie einfach an – egal, wann es Ihnen passt!
Sonstige Angaben:
Rechtlicher Hinweis:Maklercourtage: Ohne zusätzliche Käuferprovision.
Wir haben die Flächen zur Grundstücksgröße nicht überprüft, bzw. nachgemessen. Da wir Objektangaben nicht selbst ermitteln, sondern diese von Dritten, wie Bauträgern, Architekten sowie Eigentümern stammen, übernehmen wir hierfür keine Gewähr.
Dieses Exposé ist nur für Sie persönlich bestimmt. Eine Weitergabe an Dritte ist an unsere ausdrückliche Zustimmung gebunden. Alle Gespräche sind über unser Büro zu führen. Bei Zuwiderhandlungen behalten wir uns Schadensersatzansprüche vor. Ein Zwischenverkauf ist nicht ausgeschlossen. Diese Immobilie wird im Exklusivvertrag durch unser Haus angeboten.
Alle Angaben sind ohne Gewähr und basieren ausschließlich auf Informationen, die uns von unseren Auftraggebern zur Verfügung gestellt wurden. Wir übernehmen keine Gewähr für die Vollständigkeit, Richtigkeit und Aktualität dieser Angaben. Die Grunderwerbssteuer, Notar- und Grundbuchkosten sind vom Käufer zu tragen.
Der gezeigte Preis versteht sich inklusive Grundstück und exklusive der Baunebenkosten.
Exposé Stand: 26.08.2025 - Änderungen vorbehalten
Sie wollen mehr erfahren?
Wenn Sie uns eine Nachricht über das Kontaktformular senden, melden wir uns schnellstmöglich bei Ihnen:









