Neubau Kapitalanlage mit Top-Renditepotenzial: 1-Zimmer-Apartment – möbliert, modern in Augsburg!
Beschreibung:
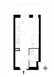
Attraktiv für Eigennutzer und Kapitalanleger – moderne 1-Zimmer-Wohnung mit Küche, Möblierung und Terrasse in ruhiger und zugleich stadtnaher Lage von AugsburgDiese vollmöblierte 1-Zimmer-Wohnung überzeugt durch eine durchdachte Raumaufteilung, zeitgemäßes Design und eine moderne Ausstattung – ideal für Singles, Studierende oder Kapitalanleger. Auf ca. 24,39 m² Wohnfläche entsteht ein kompaktes Zuhause, das Funktionalität und Wohnkomfort auf ansprechende Weise verbindet.
Der helle Wohn- und Schlafbereich wird durch bodentiefe Fenster mit viel Tageslicht versorgt und öffnet sich direkt zur ca. 5,2 m² großen Terrasse. Hier genießen Sie einen privaten Außenbereich, der den kompakten Grundriss perfekt ergänzt und zusätzlichen Freiraum im Alltag schafft.
Ein moderner Design-Vinylboden unterstreicht die klare, zeitgemäße Gestaltung, während maßgefertigte Einbauschränke für praktischen Stauraum sorgen. Das Badezimmer präsentiert sich mit bodengleicher Dusche, Handtuchheizkörper und pflegeleichter Sanitärausstattung funktional und stilvoll zugleich. Für zusätzlichen Komfort sorgen die Fußbodenheizung, eine dezentrale Wohnraumlüftung sowie eine moderne Lüftungssteuerung.
Darüber hinaus steht den Bewohnern eine gemeinschaftliche Waschküche mit hochwertigen Waschmaschinen und Trocknern zur Verfügung – ein praktisches Extra, das den Alltag erleichtert.
Ob als kompaktes Eigenheim oder als attraktive Kapitalanlage – diese Neubauwohnung im Erstbezug bietet ein stimmiges Gesamtpaket für eine zukunftssichere Investition.
Die erzielbare Nettokaltmiete liegt bei ca. 24 €/m², was einer monatlichen Miete von rund 585 € entspricht. Beim Kaufpreis von 170.000 € ergibt sich eine Bruttorendite von ca. 4,1 %. Die Bezugsfertigkeit ist voraussichtlich zum 01.10.2025 gegeben.
Lagebeschreibung:
Die Immobilie befindet sich in Augsburg-Kriegshaber, einem Stadtteil mit guter Infrastruktur und wachsender Attraktivität. Die Anbindung an den öffentlichen Nahverkehr ist hervorragend: Tram- und Bushaltestellen sind fußläufig erreichbar und ermöglichen eine schnelle Verbindung in die Augsburger Innenstadt sowie zu umliegenden Stadtteilen. Über die nahegelegene B17 und die Autobahn A8 besteht zudem eine optimale überregionale Erreichbarkeit.In der direkten Umgebung finden sich vielfältige Einkaufsmöglichkeiten für den täglichen Bedarf. Supermärkte, Drogerien, Bäckereien sowie kleinere Geschäfte sind bequem zu Fuß erreichbar. Ergänzt wird das Angebot durch Cafés und Restaurants, die für Abwechslung sorgen. Auch das Universitätsklinikum Augsburg sowie verschiedene Arztpraxen und Apotheken befinden sich in kurzer Distanz.
Für Freizeit und Erholung bietet die Lage attraktive Möglichkeiten. Der nahegelegene Osterfeldpark lädt zu Spaziergängen im Grünen ein, während Sport- und Fitnessangebote im Umfeld für Bewegung sorgen. Kulturelle Einrichtungen und die Augsburger Innenstadt bieten zusätzliche Vielfalt und runden das Freizeitangebot ab.
Entfernungen im Überblick:
- Tram- und Bushaltestellen: wenige Gehminuten
- Bahnhof Augsburg-Oberhausen: ca. 5 Fahrradminuten
- Autobahn A8 (Augsburg-West): ca. 10 Fahrminuten
- Supermärkte & Drogerien: fußläufig erreichbar
- Universitätsklinikum Augsburg: ca. 5 Fahrminuten
- Osterfeldpark: wenige Gehminuten
- Innenstadt Augsburg: ca. 15 Minuten mit der Tram
Hören was Sie besichtigen wollen: 1- Zimmer Apartment in Augsburg:
Hören was Sie besichtigen wollen: 1- Zimmer Apartment in AugsburgAusstattung:
Energieausweis:
- A+
- A
- B
- C
- D
- E
- F
- G
- H
- Baujahr:
- 2022
- Endenergiebedarf:
- 68,6 kWh/(m²a)
- Energieausweis:
- Bedarfsausweis
- Energieeffizienzklasse:
- B
- Energieausweis gültig bis:
- 03.09.2035
- Baujahr lt. Energieausweis:
- 2022
- wesentlicher Energieträger:
- Fernwärme
Ausstattungsbeschreibung:
Wohn- & Schlafbereich inkl. Küche (ca. 14,63 m²):- Offener, heller Raum mit eleganten Design-Vinylböden
- Große Kunststofffenster mit Dreh-/Drehkippfunktion oder feststehend
- Moderne 3-fach-Thermoisolierverglasung für Wärmedämmung & Schallschutz
Badezimmer (ca. 3,26 m²):
- Bodengleiche Dusche mit stilvollen Fliesen
- Fußbodenheizung & Handtuchheizkörper
Küche (in Wohn-/Schlafbereich integriert):
- Moderne Einbauküche mit Kochfeld, Mikrowelle & Kühlschrank
- Oberschränke & Unterschränke mit Stauraum
Möblierung:
- Schranklösungen für Stauraum
- Bett-/Schlaflösung integriert
- Tisch/Arbeitsplatz vorhanden
Flur & Abstellfläche (ca. 3,89 m²):
- Funktionaler Eingangsbereich mit Stauraum
Terrasse (ca. 5,20 m² / anteilig ca. 2,60 m²):
- Praktische Terrasse als Erweiterung des Wohnraums
Heizung & Lüftung:
- Fußbodenheizung in der gesamten Wohnung
- Bad mit Lüfter & Nachlaufrelais/Taster
- Dezentrale Wohnraumlüftung ohne Wärmerückgewinnung
Gemeinschaftliche Einrichtungen:
- Wasch- und Trockenraum mit modernsten Maschinen
- Fahrradstellplatz
Sonstiges:
- Eigenes Kellerabteil für zusätzlichen Stauraum
- Moderner Personenaufzug mit Zugang zu allen Ebenen
- Highspeed-Internet & Kabel-TV (Glasfaserleitung von M-net)
- Energieeffizienzstandard B
Immobilien schlafen nicht – und wir eigentlich auch nicht.
Doch wenn wir uns ausnahmsweise mal eine Mütze Schlaf gönnen, haben wir vorgesorgt: Unsere digitale Assistentin „Alexa Prime“ von RE/MAX Prime ist rund um die Uhr für Sie da. Sie können jederzeit anrufen – 24 Stunden am Tag, 7 Tage die Woche – und bekommen Antworten auf Ihre ersten Fragen oder können direkt einen Besichtigungstermin vereinbaren.
Die Telefonnummer finden Sie selbstverständlich in den Exposé-Bildern zum Objekt. Also: Rufen Sie einfach an – egal, wann es Ihnen passt!
Sonstige Angaben:
Rechtlicher Hinweis:Maklerprovision: 3,57% Käuferprovision inkl. MwSt. vom notariell beurkundeten Kaufpreis, verdient und fällig bei notarieller Beurkundung. Wir haben einen provisionspflichtigen Maklervertrag in gleicher Höhe mit dem Eigentümer abgeschlossen.
Die Angaben zum Baujahr konnten wir nicht eindeutig ermitteln, gehen aber davon aus, dass das ursprüngliche Gebäude im Jahr 2022 aufgrund der vorliegenden Bauunterlagen auch wirklich erbaut worden ist. Wir übernehmen hier zudem die Daten des Energieausweises.
Da wir Objektangaben nicht selbst ermitteln, sondern diese von Dritten, wie Bauträgern, Architekten, Hausverwaltungen sowie Eigentümern stammen, übernehmen wir hierfür keine Haftung. Wir übernehmen keine Haftung für die Vollständigkeit, Richtigkeit und Aktualität dieser Angaben.
Dieses Exposé ist nur für Sie persönlich bestimmt. Eine Weitergabe an Dritte ist an unsere ausdrückliche Zustimmung gebunden. Alle Gespräche sind über unser Büro zu führen. Bei Zuwiderhandlungen behalten wir uns Schadensersatzansprüche vor. Ein Zwischenverkauf ist nicht ausgeschlossen. Diese Immobilie wird im Exklusivvertrag durch unser Haus angeboten.
Die Grunderwerbssteuer, Notar- und Grundbuchkosten sind vom Käufer zu tragen.
In unseren Angeboten wird aus Gründen der besseren Lesbarkeit das generische Maskulinum verwendet. Weibliche und anderweitige Geschlechteridentitäten werden dabei ausdrücklich mitgemeint, soweit es für die Aussage erforderlich ist.
Exposé Stand: 09.07.2025 - Änderungen vorbehalten
Sie wollen mehr erfahren?
Wenn Sie uns eine Nachricht über das Kontaktformular senden, melden wir uns schnellstmöglich bei Ihnen:








